49
$998,000 Sale
Listed 3 hours ago
210 NORTHLAKE Drive
· 3+3
· 3.5
· 5
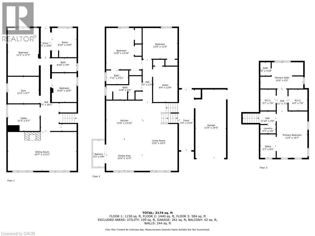
· 3174
Key Facts
Key facts for 210 NORTHLAKE Drive
Property Type
House, House
Parking
Garage: Yes, 5 parking
MLS #
40780471
Size
3174 sqft
Basement
Finished, Full (Finished)
Listed on
-
Lot size
-
Tax
-
Days on Market
-
Year Built
-
Maintenance Fee
-
Description
Welcome to a home that truly has it all. Set in the desirable North Lakeshore neighbourhood of Waterloo, this fully renovated detached home combines modern comfort with timeless design. With 6 bedrooms, 4 full bathrooms, and a recently completed third-floor addition, it offers over 3,100 sq. ft. of ...finished living space designed for todays families. The third floor is a private retreat featuring a grand primary suite with two walk-in closets, a private office or sitting area, and a spa-inspired ensuite with a deep tub, oversized shower accented with imported Spanish tile, dual vanities, heated floors, skylight, and private toilet room. Please note, the primary bedroom is located on a different floor than the other bedrooms (for families with small children). The second floor centers around a stunning kitchen with herringbone tile, gold hardware, farmhouse sink, Café GE appliances, and a handcrafted island. Open to the dining and living areas, it flows seamlessly to a cozy deck overlooking the front yardperfect for morning coffee. Flexible living options include a lower level with separate entrance and hookups for a second kitchen, ideal for an in-law suite or mortgage helper. Spacious bedrooms and full bathrooms provide comfort for family and guests alike. Outside, the backyard oasis features 8-foot privacy fencing, a wood-burning sauna, cold plunge, covered porch, and generous space for play or entertaining. A triple-wide driveway plus garage offers parking for 5 vehicles. Located minutes from St. Jacobs Farmers Market, Conestoga Mall, Highway 8, and Laurel Creek Conservation Area, this home blends convenience, natural beauty, and modern living in one of Waterloos most welcoming communities. Updates: New furnace & A/C (2022); All new Café GE appliances (2023) New LG washer & dryer (2023) 584 sq. ft. Addition (2023) Fence (2021) Furnace, AC, & Water Softener 2021. **Addition constructed by Eagle View, inspections passed and building permit is closed. (id:10452)
Similar Properties (No results)
Room Types
2pc Bathroom
-
Dimensions 4'11'' x 7'11''
38.92 sqft
3pc Bathroom
-
Dimensions 5'0'' x 8'10''
44.17 sqft
Bedroom
-
Dimensions 10'4'' x 8'10''
91.28 sqft
Listing courtesy of: RED AND WHITE REALTY INC.
This REALTOR.ca listing content is owned and licensed by REALTOR® members of The Canadian Real Estate Association.