23
$525,000 Sale
Listed 1 hour
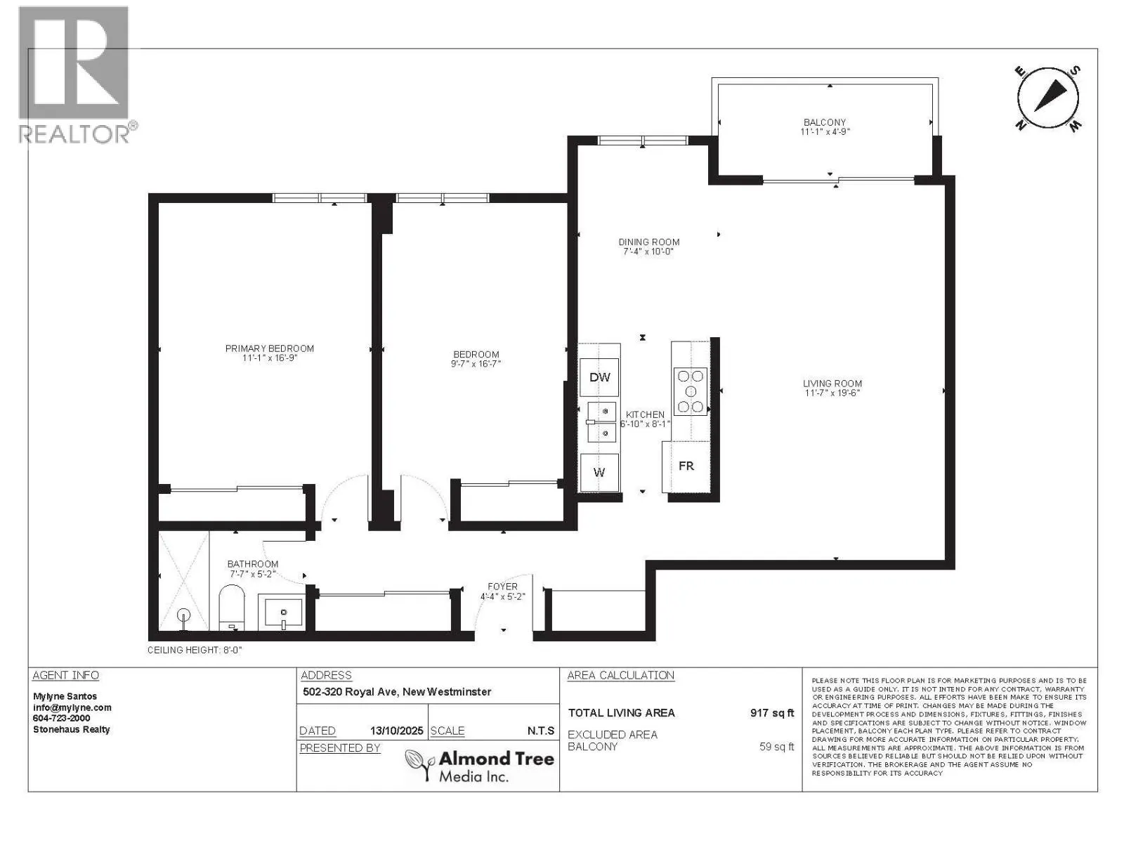
502 320 ROYAL AVENUE
· 2
· 1.0
· 1
· 917
Key Facts
Key facts for 502 320 ROYAL AVENUE
Property Type
Condo, Apartment
Parking
Garage: No, 1 parking
MLS #
R3059856
Size
917 sqft
Basement
-
Listed on
-
Lot size
-
Tax
-
Days on Market
-
Year Built
1975
Maintenance Fee
$615.52/mo
Description
Cozy, bright south-facing 2 bed/1 bath corner unit in a well-maintained concrete high-rise with stunning river and city views. Updated kitchen and bath plus stainless steel appliances. Includes large locker, underground parking, and heat included. Building is cared for by a proactive strata. Buildin...g upgrades include security, elevator, electrical vault, refinished tennis court and court yard, boilers, new deck membrane, new exterior paint. Pets allowed. Just a 5-minute walk to SkyTrain, Queen´s Park, riverside trails, schools, and shopping-an ideal location for convenience and lifestyle. (id:10452)
Similar Properties (No results)
Listing courtesy of: Stonehaus Realty Corp.
This REALTOR.ca listing content is owned and licensed by REALTOR® members of The Canadian Real Estate Association.